usa@karmod.us
+1 832 713 1600
Home
Institutional
About Us
Certificates
References
F.A.Q.
Booths
Prefab Guard Booths
Guard Shacks
Portable Restrooms & Toilets
Plastic Mobile Restrooms & Showers
Metropol City Booths
Bullet Resistant Guard Booth
Portable Security Booths
Booth Technical Specifications
Mobile Office
Ground Level Office Containers
Mobile Office Containers
Office Trailers For Sale
Container Homes
Portable Office
Portable Restroom Blocks
Modular Building Complexes
Flat Pack Container Technical Specifications
Modular Homes
Contact
+1 832 713 1600
Mon – Sat: 7/24
usa@karmod.us
+1 832 713 1600
Home
Institutional
Institutional
About Us
Certificates
References
F.A.Q.
Booths
Booths
Prefab Guard Booths
Guard Shacks
Portable Restrooms & Toilets
Plastic Mobile Restrooms & Showers
Metropol City Booths
Bullet Resistant Guard Booth
Portable Security Booths
Booth Technical Specifications
Mobile Office
Mobile Office
Ground Level Office Containers
Mobile Office Containers
Office Trailers For Sale
Container Homes
Portable Office
Portable Restroom Blocks
Modular Building Complexes
Flat Pack Container Technical Specifications
Modular Homes
Contact
Home
Products
Modular Homes 1313 ft2
Go Back
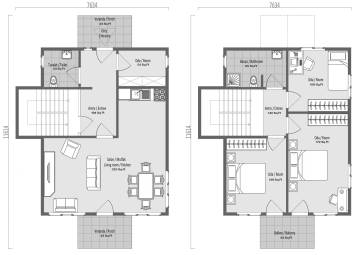
Modular Homes 1313 ft2
Porch
43 sq.ft
Bathroom
54 sq.ft
Entree
140 sq.ft
Bathroom
65 sq.ft
Room
172 sq.ft
Room
108 sq.ft
Room
129 sq.ft
Entree
194 sq.ft
Room
54 sq.ft
Living Room/Kitchen
323 sq.ft
Toilet
43 sq.ft
Porch
43 sq.ft
Balcony
43 sq.ft
Currently 81 guests are viewing this product
Get Price
Call us
Detail
Most Viewed
Office Trailers For Sale
Office Trailer 400×800
Get Price
Detail
Mobile Office Containers
Mobile Offices K2001
Get Price
Detail
Ground Level Office Containers
Ground level offices K1001
Get Price
Detail
Guard Shacks
Guard Shacks 9′ x 25′
Get Price
Detail
Other
Gate House 5′ x 5′
Get Price
Detail
Prefab Guard Booths
Guard Booths 13′ x 21′
Get Price
Detail
Well Call You
I have read the KVK Text regarding my personal data that I shared in the contact form. I expressly consent to the processing of my personal data that I share.
Submit
Whatsapp
Call us
Email